Search
QINGDAO LG RIGGING CO.,LTD.
QINGDAO LG RIGGING CO.,LTD.
LGRIG® Marine Double Bollard ISO 13795-2012 Type B
LGRIG® Marine Double Bollard ISO 13795-2012 Type B

LGRIG® Marine Double Bollard ISO 13795-2012 Type B

Marine Double Bollard, also known as Double Bitt Boat Bollard.

ISO 13795-2012 Type B is a German standard that defines the design and construction specifications for marine double bollards, which are short, sturdy posts used to secure mooring ropes or cables for vessels.

Specifically engineered for larger ships such as cargo carriers, tankers, and cruise liners, these bollards are built to endure the high forces generated during mooring operations.

Constructed from high-quality steel plate, they must withstand a breaking force of at least 50% of the maximum working load while offering corrosion resistance for long-term durability in marine environments.

The design features two vertically aligned bollards connected by a horizontal crossbar, providing enhanced stability and the capability to secure two ropes simultaneously.

The standard outlines precise dimensions, tolerances for height, width, and diameter, as well as guidelines for proper installation and maintenance to ensure safe and reliable performance.

Trawling Gear
Hooks
Shackles
Boat Fittings

Information of LGRIG® Marine Double Bollard ISO 13795-2012 Type B

Brand

LGRIG®

Material

Steel Plate

Standard

ISO 13795-2012 Type B

Style

Marine Double Bollard


Specification of LGRIG® Marine Double Bollard ISO 13795-2012 Type B

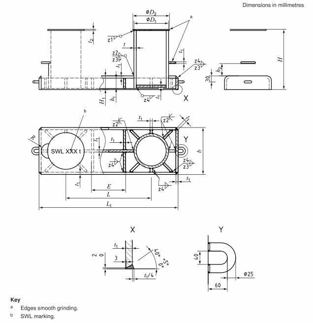
drawing-marine-double-bollard-iso-13795-2025-type-b-lgrig.jpg

Part No.

Nominal

Size

D1

D2

H1

H2

h1

h2

b

L

L1

E

t

t1

t2

R

LGDBISO12B150

150

165.2

185

320

80

62

70

225

400

670

145

8.0

8

6

40

LGDBISO12B200

200

216.3

240

365

85

67

70

290

500

860

160

8.0

8

6

50

LGDBISO12B250A

250A

267.4

290

470

100

79

90

360

630

1065

215

12.0

11

8

60

LGDBISO12B250B

250B

267.4

290

470

100

79

90

360

630

1065

215

10.0

8

7

60

LGDBISO12B300A

300A

318.5

340

575

125

95

110

430

800

1300

325

21.5

20

9

70

LGDBISO12B300B

300B

318.5

340

575

125

95

110

430

800

1300

325

12.0

9

9

70

LGDBISO12B350A

350A

355.6

380

655

145

108

130

480

890

1475

360

26.0

23.5

11

80

LGDBISO12B350B

350B

355.6

380

655

145

119

130

480

890

1475

360

14.0

13

9

80

LGDBISO12B400A

400A

406.4

430

705

160

121

145

550

1000

1630

400

28.0

26

13

85

LGDBISO12B400B

400B

406.4

430

705

160

133

145

550

1000

1630

400

15.0

13.5

11

85

LGDBISO12B450A

450A

457.2

480

745

170

131

160

620

1100

1810

430

29.0

26

14

90

LGDBISO12B450B

450B

457.2

480

745

170

144

160

620

1100

1810

430

14.5

13

11

90

LGDBISO12B500A

500A

508.0

530

790

190

146

200

690

1250

2040

500

32.0

29

16

100

LGDBISO12B500B

500B

508.0

530

790

190

162

200

690

1250

2040

500

14.5

13

11

100

LGDBISO12B550A

550A

558.8

580

840

210

167

200

750

1380

2240

560

31.0

28

16

110

LGDBISO12B550B

550B

558.8

580

840

210

176

200

750

1380

2240

560

21.0

19

11

110

LGDBISO12B600

600

609.4

630

875

225

182

200

820

1550

2490

660

33.0

28

16

120

SWL of ISO 13795-2012 Marine Double Bollard Type B:

Part No.

Nominal

Size

Welding leg length

SWL

Calculated

weight

For mooring purposes

(Figure-of-eight belay)

For towing purposes

(eye splice)



z1

z2

z3

z4

One-rope use

Two-rope use



(kN)

(t)

(kN)

(t)

(kN)

(t)

(kg)

LGDBISO12B150

150

3

3

6

4

54

5.5

49

5.0

540

10

45

LGDBISO12B200

200

3

3

6

4

82

8.4

65

6.7

795

13

68

LGDBISO12B250A

250A

4

4.5

8

6

156

16

134

14

1736

27

150

LGDBISO12B250B

250B

3

3.5

6

4

127

13

108

11

216

22

119

LGDBISO12B300A

300A

4

8

12

10

332

34

306

31

4365

62

383

LGDBISO12B300B

300B

4

5

8

6

186

19

161

16

353

36

203

LGDBISO12B350A

350A

5

10

14

12

443

45

418

43

6543

85

582

LGDBISO12B350B

350B

4

5.5

8

16

244

25

216

22

3757

50

333

LGDBISO12B400A

400A

6

11

16

13

594

61

521

53

8819

106

793

LGDBISO12B400B

400B

5

5.5

8

7

326

33

269

27

4983

67

441

LGDBISO12B450A

450A

7

11

16

13

753

77

612

62

10820

124

979

LGDBISO12B450B

450B

7

5.5

8

7

382

39

292

30

5837

78

517

LGDBISO12B500A

500A

8

12

17

15

992

101

757

77

14470

154

1321

LGDBISO12B500B

500B

5

5.5

8

7

457

47

326

33

7102

93

631

LGDBISO12B550A

550A

8

11

17

14

1131

115

812

83

16628

165

1530

LGDBISO12B550B

550B

5

8

12

10

781

80

541

55

11949

159

1059

LGDBISO12B600

600

8

11

17

14

1401

143

948

97

20042

193

1850


We are a professional manufacturer and supplier of Trawling / Rigging / Stainless / Yacht Equipments in China
Contact LG RIGGING NOW
Request a Free Quote
Upload
or drag files here.

Related Cleats & Fairleads

China LG RIGGING's Updates
Copyright © QINGDAO LG RIGGING CO.,LTD. All Rights Reserved.
sales@lg-lifting.com
+86 19524345486