Search
QINGDAO LG RIGGING CO.,LTD.
QINGDAO LG RIGGING CO.,LTD.
LGRIG® Marine Double Cross Bollard GBT554-2008 Type DH
LGRIG® Marine Double Cross Bollard GBT554-2008 Type DH

LGRIG® Marine Double Cross Bollard GBT554-2008 Type DH

Marine double Cross Bollard, also known as double Cross Bitt Boat Bollard.

GBT 554-2008 Marine Double Cross Bollard Type DH is designed for secure mooring operations in ports, harbors, and waterways.

Its structure features two intersecting bars forming a cross shape, offering a robust anchoring point for ship ropes or cables.

Fabricated from high-quality cast steel, the bollard ensures durability and corrosion resistance in harsh marine environments.

Equipped with a large base plate for solid foundation mounting, it provides high load-bearing capacity, enabling it to withstand heavy forces without deformation.

Commonly used alongside other mooring equipment, the Type DH bollard delivers reliable performance for the safe berthing of vessels.

Trawling Gear
Hooks
Shackles
Boat Fittings

Informations of LGRIG® Marine Double Cross Bollard GBT554-2008 Type DH

Brand

LGRIG®

Material

Steel Plate

Standard

GBT554-2008 Type DH

Style

Marine Double Cross Bollard


Specifications of LGRIG® Marine Double Cross Bollard GBT554-2008 Type DH

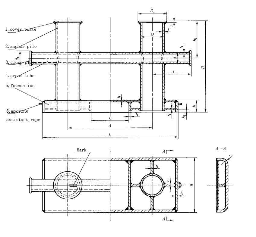
drawing-marine-double-cross-bollard-gbt554-2008-type-dh-lgrig.jpg

Part No.

Nominal

Size

SWL

(KN)

A

B

d

d1

D

D1

h

LGDCB554DH200

200

72

600

360

130

145

203

225

145

GDCB554DH250

250

105

750

450

159

180

245

280

155

GDCB554DH300

300

185

900

540

194

215

299

330

180











Part No.

Nominal

Size

h1

h2

H

L

r

t

>=

t1

>=

Weight

(kg)

LGDCB554DH200

200

275

60

795

960

20

12

9

181

GDCB554DH250

250

350

60

855

1200

25

14

12

310

GDCB554DH300

300

420

73

1160

1440

30

16

14

576


We are a professional manufacturer and supplier of Trawling / Rigging / Stainless / Yacht Equipments in China
Contact LG RIGGING NOW
Request a Free Quote
Upload
or drag files here.

Related Cleats & Fairleads

China LG RIGGING's Updates
Copyright © QINGDAO LG RIGGING CO.,LTD. All Rights Reserved.
sales@lg-lifting.com
+86 19524345486